Технічні характеристики
- Потужність — 1800 Вт
- Живлення — 230 V / 50Hz
- Максимальна температура — 75°C
- Максимальний тиск — 8 бар
- Клас захисту — IPX4
- Клас енергоспоживання — D
| ST 80 | ST 100 | ST 150 | ST 200 | |
| Термічна дисперсія 65° | 1,32 | 1,51 | 2,09 | 2,42 |
| Час нагріву до 50°C | 140' | 175' | 416' | 499' |
| Профіль | M | M | L | L |
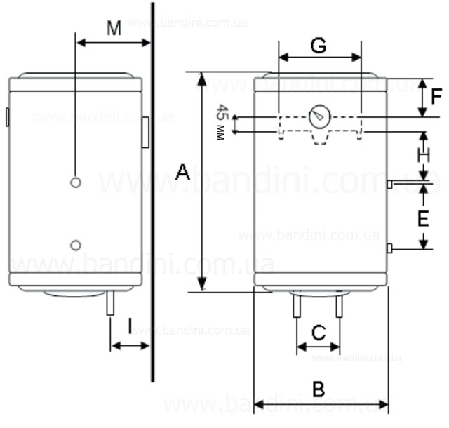
Габарити, мм
| Model | A mm | B mm | C mm | E mm | F mm | G mm | H mm | I mm | M mm |
| ST 80 | 700 | 460 | 100 | 265 | 130 | 350 | 40 | 130 | 240 |
| ST 100 | 805 | 460 | 100 | 265 | 160 | 350 | 180 | 130 | 240 |
| ST 150 | 935 | 550 | 140 | 350 | 180 | 350 | 140 | 130 | 285 |
| ST 200 | 1105 | 550 | 140 | 350 | 180 | 350 | 280 | 130 | 285 |





Водонагрівачі з сухим ТЕНом та теплообмінником ємністю 80|100|150|200 літрів
Переваги